東光高岳技報 No.12 2025

電力設備のレジリエンス向上に貢献する
72kV移動用ガス絶縁開閉装置の開発

岡村 裕之 Hiroyuki Okamura

1はじめに

近年,電力インフラ設備の老朽化が進み,自然災害の頻発も相まって,変電所設備更新時の送配電維持や設備事故時の早期復旧が電力会社として大きな課題となっている。これらの課題解決に向けて,当社ではこれまでに,ガス絶縁開閉装置をトラックに積載した移動用ガス絶縁開閉装置を開発・納品してきた。

しかし都市部の配電用変電所は,土地や周辺道路が狭い所が多く,設備更新や設備事故時に移動用ガス絶縁開閉装置を現地へ出動させても,設置スペースの確保が困難という新たな課題が生じている。この課題を解決するため,よりコンパクトで軽量化した新形移動用ガス絶縁開閉装置(以下,本器)を開発したので紹介する。

2開発コンセプト

移動用ガス絶縁開閉装置に求められるのは,既設の設備更新時はもとより,設備事故などの緊急時にも迅速に現地へ出動し,電力の供給障害を復旧できることである。そのため,特殊車両通行許可申請注1)が不要となる重量・寸法にする必要がある。今回はこれを踏襲しつつ,新たに設置スペースの縮小化を開発コンセプトとして掲げた。

従来形は機器をトラックに積載したまま使用する必要があったが,本器はトラックから荷下ろしして使用できるようにすることで,機器を使用する際に必要な設置スペースの縮小化を図った。現地でのトラックからの荷下ろしを考慮して,機器本体の重量は3,300kg以下とした。

3仕様

3.1 外観

図1に本器の外観を示す。

図1 本器の外観

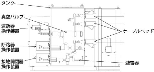
3.2 内部構造

図2に本器の概略内部構造を示す。

図2 本器の内部構造

3.3 仕様概要

お客さまと協議を重ね,必要な仕様を決定した。基本仕様を表1に示す。

表1 基本仕様
項目 仕様
定格電圧 72kV
定格電流 800A
雷インパルス耐電圧 250kV(低減電圧注2)
商用周波耐電圧 115kV(低減電圧)
定格周波数 50Hz
定格短時間耐電流 25kA,2s
定格ガス圧力 0.07MPa
ガス種類 SF6
総ガス量 21kg
総重量 3,300kg

4特徴

4.1 機器の軽量化・機器の縮小化

(1)本体タンクの軽量化

従来形は絶縁ガスを封入するタンクの材質に鉄鋼材を採用していたが,本器ではアルミニウム材を用いることで軽量化を図った。採用にあたり,構造解析を行い,タンク内に封入される絶縁ガス圧力による応力や変形を評価し,最適な板厚と補強位置を決定した。図3にタンクの強度解析結果の一例を示す。

図3 タンクの内部圧力による強度解析例

(2)機器本体の縮小化

お客さまと協議の上で低減電圧を採用することで,定格耐電圧値を低く設定でき,絶縁距離の短縮が可能となった。それにより機器の縮小化を実現した。

表1に示す通り,雷インパルス耐電圧値および,商用周波耐電圧値の低減電圧を採用した。

(3)設置スペースの縮小化

機器をトラックから荷下ろしして使用できるようにしたことで,従来形と比較して,本器とそれを制御する制御盤注3)は設置面積を約70%削減することができた。設置スペース比較図を図4に示す。

図4 設置スペースの比較図

4.2 輸送時のガス減圧不要と環境負荷低減

従来形でも採用している技術を踏襲し,遮断部に高圧のSF6ガスを使用しない真空バルブを採用することで,タンク内のSF6ガス圧力を低圧力のみで構成している。タンク内のガス圧力が高圧力の場合は機器輸送時に減圧し,現地での機器使用時に昇圧する必要がある。本器は輸送時のガス減圧を不要としつつ,機器の縮小化との相乗効果により,ガス使用量の大幅削減を実現した。

5おわりに

都市部などの土地や周辺道路が狭い変電所でも出動できる軽量・コンパクトな72kV移動用ガス絶縁開閉装置を開発した。

2024年度には7台を納入済みで,2025年度にも納入を予定している。これにより,電力会社のレジリエンス向上に貢献することが期待される。

■語句説明

注1) 特殊車両通行許可申請:道路法で定められた特定の条件(特殊な構造の車両や車両の大きさ,重さなど)を超える車両が公道を走行する際に必要な許可を得るための手続きのこと。

注2) 低減電圧:ガス絶縁タンク形高性能避雷器を適用し,大電流放電時においても耐電圧値との間に相当な余裕をもつ場合,定格耐電圧値の低い方を採用できる。この低い耐電圧値を「低減電圧」と呼称する。表2に,定格72kVの耐電圧値を抜粋して示す。

表2 定格電圧72kVにおける耐電圧値の抜粋※今回採用した低減電圧
定格電圧 定格雷
インパルス耐電圧値
商用周波耐電圧値
72kV 250kV 115kV
350kV 140kV

注3) 制御盤:開閉装置の操作・状態表示・故障表示などを担う制御装置。従来形は車両に積載されているが,本器では開閉装置本体同様に荷下ろしして使用する。

岡村 裕之
電力プラント事業本部
第一設計部 開閉装置設計グループ 所属

お問い合わせはこちら
お問い合わせ
製品・サービスに関する資料はこちら
資料ダウンロード
ページの先頭に戻る